中古住宅
庭付き平屋のゆとりある暮らし。 高速ICや学校が身近な、子育て世代にやさしい住環境です。【西間上町2512-3】
人吉市西間上町にある、落ち着いた住宅地の平屋建て住宅です。
昭和57年建築。
土地363㎡(109.80坪)、建物125.31㎡(37.90坪)のゆとりある住まいは、広さと価格のバランスが魅力です。
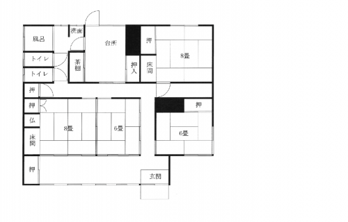
間取りは8畳・8畳・6畳・6畳の和室を中心とした構成。続き間として開放的に使うことも、それぞれを個室として活用することもでき、ライフスタイルに合わせた住まい方が可能です。
床の間や仏間も備え、日本家屋ならではの落ち着いた雰囲気を感じられます。トイレは2か所あり、ご家族が多い世帯や来客時にも安心。
敷地内には3台分の駐車スペースを確保しており、車移動中心の生活にも対応できます。
アクセス面も良好!
人吉球磨スマートインターチェンジまで車で約4分。
人吉インターチェンジまで車で約11分です。
また、1.5km圏内に第一中学校、東間小学校があり、子育て世帯にも安心の環境です。
人吉で、新しい暮らしを始めてみませんか。
所在地:人吉市西間上町2512番地3
構 造:木造平屋建て
建築年:昭和57年建築
この物件に対するお問い合わせは
九州総合不動産㈱ 0966-26-3100にお願いします。
昭和57年建築。
土地363㎡(109.80坪)、建物125.31㎡(37.90坪)のゆとりある住まいは、広さと価格のバランスが魅力です。
間取りは8畳・8畳・6畳・6畳の和室を中心とした構成。続き間として開放的に使うことも、それぞれを個室として活用することもでき、ライフスタイルに合わせた住まい方が可能です。
床の間や仏間も備え、日本家屋ならではの落ち着いた雰囲気を感じられます。トイレは2か所あり、ご家族が多い世帯や来客時にも安心。
敷地内には3台分の駐車スペースを確保しており、車移動中心の生活にも対応できます。
アクセス面も良好!
人吉球磨スマートインターチェンジまで車で約4分。
人吉インターチェンジまで車で約11分です。
また、1.5km圏内に第一中学校、東間小学校があり、子育て世帯にも安心の環境です。
人吉で、新しい暮らしを始めてみませんか。
所在地:人吉市西間上町2512番地3
構 造:木造平屋建て
建築年:昭和57年建築
この物件に対するお問い合わせは
九州総合不動産㈱ 0966-26-3100にお願いします。
| 賃料 | 売却 700万円(手数料別) |
|---|---|
| 広さ | 土地面積:363㎡(109.80坪)、建物面積:125.31㎡(37.90坪) |
| 間取り | 和室(8畳×2、6畳×2)、台所、風呂、トイレ2か所 ほか |
| 設備 | 駐車場3台分有 |


人吉市役所 市民部地域コミュニティ課自治支援係
- TEL
- 0966-22-2111(内線1062)
- 住所
- 人吉市西間下町7-1














